
长按识别二维码
即刻进入VR体验
水墨韵,笔锋由浓转淡
在炊烟袅袅间扬起隔江千万里大气
提笔而作,一圈一圈沁开来
染透了黑白的山水
纯粹且有旋律的构成全新面貌
向我们诉说着关于“东方美”的故事
本案位于云南玉溪市
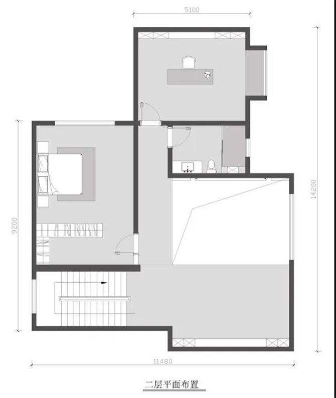
项目面积约为236平米复式结构
整个户型分为上下两层楼面
在时代前进的脚步中
探索中式传统人居巅峰
设计师用精准的设计
秉承中而不古新而不洋的
新中式设计理念


01
TEA ROOM
茶室
古人追求道法自然
天人合一的精神境界
而恰恰只有茶
迎合了这份渴望舒适、恬淡的心理
配以显现山水元素的挂画
点缀以增加空间的活跃感
当茶室遇上新中式装修风格
注定是一道让人无法忘却的风景
一个素雅简洁的中式茶室
是每个爱茶的人心中的天地


02
LIVING ROOM
客厅
步入客厅剔除烦躁装饰回归淡雅
中空加上大面积的窗户通透感
视觉可及的范围被外扩延伸
木栅栏式屏风隔断客厅与茶室
古典情诗与现代生活气息
自然而然地糅为一体
汲取新中式骨子里的雅致意趣
将温婉优雅和精致极简暗藏于设计中
独领东方式美学风韵
面与面构成简明利落的中式格调
大面积灰调地砖铺陈出空间底蕴
与素净的米白色墙面形成对比
中国元素的砖红色作为点缀
以自然肌理为主色调
将温婉优雅、精致极简暗藏于内
连纹设计的背景墙有一片到顶视感
家居空间更显规整大气、源远流长
低调奢华的灰色,穿插于蓝黑两色之间
冲刷着痕迹印刻着昔日的故事
晶莹闪烁的金属线镶嵌在胡桃木
干净流畅的线条勾勒空间达成视觉和谐


03
KITCHEN&DINING ROOM
厨房&餐厅
生活里最平凡的浪漫
是柴米油盐、四季三餐
厨房,是个可以治愈人心的神奇之地
微水泥的美感结合瓷砖耐用
米色橱柜充满温暖的人间烟火
朴素特性与中式风格珠联璧合
打造独特的东方美学气质
水波涟漪一般的吊灯蜿蜒而下
木纹雅致细腻的餐桌古典柔美
香格里拉背景墙与山水装饰品相呼应
享受美食的同时多一分沟通
现代东方风情的韵味令人沉醉倍感舒心


04
BEDROOM
一层-主卧
床头静气内敛的水墨画
一撇一捺皆蕴含着艺术的情感
纯粹的暖色调作为空间主色出现
烘托出一种文雅与风度
犹如被水冲洗过一般淡雅而静气
云想花裳花想容
次卧衣帽间增强了空间流动性
衣柜采用藏蓝色的木质
打造简单利落而又不失优雅的家具
金属框架搭配玻璃干净爽利
以美学视觉借助原结构
把卫生间区域隔分出来
大理石花纹如翻开的卷轴
05
BEDROOM
二层-次卧
房间色调将低保和度的米灰
与四季系列的木纹地砖结合
简约的搭配,素雅的装饰
给人一种宁静致远的感觉
点亮一室古韵风情,置身其中
营造岁月静好的氛围


07
READING ROOM
书房
步入书房是充满书香气息的空间
主人公修身养性之地
自然与书墨的情感共鸣在此间碰撞
远离喧嚣而不失消极颓废
一笔、一砚、一纸、一笔
生活的清净、悠闲,不亦乐乎
圆,有圆满之意
确切符合了中国人内心深处的向往
将中式元素融入建筑
很好地保持了传统建筑的精髓
有效地融合了现代建筑与现代设计因素
改变了传统建筑的功能使用,给予重新定位




相关文章
头条焦点
精彩导读